
The South Condo hanya 50 menit dari Harbourfront dan Vivo City Mall Singapore. Kondominium ini juga terletak di jantung pusat kota Batam dengan kenyamanan modern. Seperti pusat perbelanjaan, lapangan golf, pusat kesehatan, sekolah internasional, dan fasilitas terkemuka lainnya.
Hai, nama saya Suandi, Konsultan Property Anda yang akan melayani dan menjawab semua pertanyaan Anda tentang One Avenue Batam khususnya South Condo.
Anda akan merasa nyaman, terutama saat menggunakan lift yang siap membawa anda ke lantai manapun.
Dengan jumlah lift ini, penghuni tidak perlu menunggu terlalu lama untuk naik atau turun.
Manfaat ini merupakan salah satu fasilitas unggulan yang akan memudahkan hidup Anda.
Anda tidak akan pernah kehabisan gas saat memasak dengan fasilitas yang kami sediakan.
Anda akan memiliki ruang yang nyaman digunakan untuk memasak makanan kesukaan.
Dengan fasilitas ini, Anda akan selalu mendapatkan udara segar dan sinar matahari.
Mobil favorit Anda akan selalu mendapatkan tempat yang layak dan jauh lebih aman.
Saat berenang atau berolahraga, Anda tetap bisa mendapatkan privasi Anda dan Keluarga
Layanan Manajemen Properti & Sistem Keamanan 24 jam dalam 1 minggu.
Akses Kartu Pintar 3 Lapis dari Lobi ke Unit Anda yang akan menambah privasi.
Hiburan tanpa batas untuk Anda dan keluarga baik dihari biasa maupun hari libur.
Anda bisa mendapatkan semuanya untuk bekerja atau bermain yang akan membuat kehidupan anda lebih baik.
Homogeneous tile
Dinding bata ringan dicat
Kaca, dinding bata
Partisi gipsum ganda
Grohe/Toto Premium
Kabinet Dapur di Bawah
Kamar tidur & ruang tamu
Sudah terpasang
Toto Premium or eq
Kayu Olahan Ekslusif

Ukuran 4,4 m x 9,75 m | TOTAL AREA – SGA 49,91 Sqm

Ukuran 6,2 m x 9,75 m | TOTAL AREA - SGA 70.98 sqm

Ukuran 8,4 m x 9,75 m | TOTAL AREA - SGA 96,52 sqm

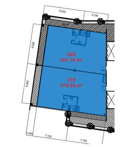
Ukuran 8,4 m x 9,75 m | TOTAL AREA – SGA 166 Sqm

Ukuran 8,4 m x 13,70 m | TOTAL AREA - SGA 175 sqm

Ukuran 12,85 m x 21,70 m | TOTAL AREA - SGA 370 sqm
Silahkan hubungi kami. Dengan senang hati kami akan menjawab semua pertanyaan Anda untuk mendapatkan Unit terbaik the South Condo.
WhatsApp : +62812 6706 2285 Email: support@bisaproperty.com
Jl. Raja H. Fisabilillah 01, Batam Kepulauan Riau 29433
Powered by : SwanDigi